本帖最后由 Sinova信德地产 于 2020-10-6 11:05 编辑
D1-D4, 36 GLENBURNIE TERRACE, PLYMPTON
D1: 3卧2.5浴单车库 $520,000 - $529,000 D2&3: 3卧2.5浴单车库 $509,000 D4:4卧2.5浴单车库 $529,000 Jarrod 廖怀斌 0402 855 996 Stephen 王泉成 0415 038 880
即将开工,集现代化设计,奢华和方便一体的好房,在深受当地市场欢迎的Plympton区4套联排别墅,现在出售。让您的生活品势上升一个新的台阶。
本项目可享Home Builder $25,000 + 首次置业$15,000补助,符合条件的买家千万不要错过
区位
Location 生活佳位
Glenburnie大街联排别墅项目位于热门地区Plympton。这里拥有独一无二的居住环境,得天独厚的地理位置,距离市区仅4公里,开车进城呼吸之间。    项目周边公园/购物中心实拍
到风景宜人,热闹多姿的Glenelg海滩只要6公里,10分钟即可享受海风轻拂。
项目所在位置,步行即可到达Kurralta Park的购物中心,从超市银行,到咖啡餐厅。周边还有一处运动/游乐设施丰富的公共花园。
房屋
Property 精品设计 四套别墅都具备着敞阔,明亮,具备延伸感的优秀现代户型。全屋装置Fujitsu冷暖循环空调。加强实木地板铺设一楼生活区,而卧室则全部装置了温暖静谧的地毯。
D1-D3这几处三卧户型,卧室在楼上;拥有四间卧房的D4,主卧在楼下,其他卧房在楼上。主卧带有单独衣帽间以及卫浴,其他卧室皆配置墙衣橱。
阳光倾撒的客厅空间通过玻璃滑门,连接后院,并且有带遮阳棚的舒爽户外空间。
厨房配置了知名品牌Fisher & Paykel的加宽型 900mm 灶台,同时抽油烟机,烤箱以及洗碗机一应俱全。操作案台采用了40mm的加厚石台面。
超高配置的浴室从细节处体现了房屋的品质:2 Pac处理过的烤瓷柜面光莹坚实,瓷砖铺设到顶无需担心水汽,面盆则采用了石面材质。
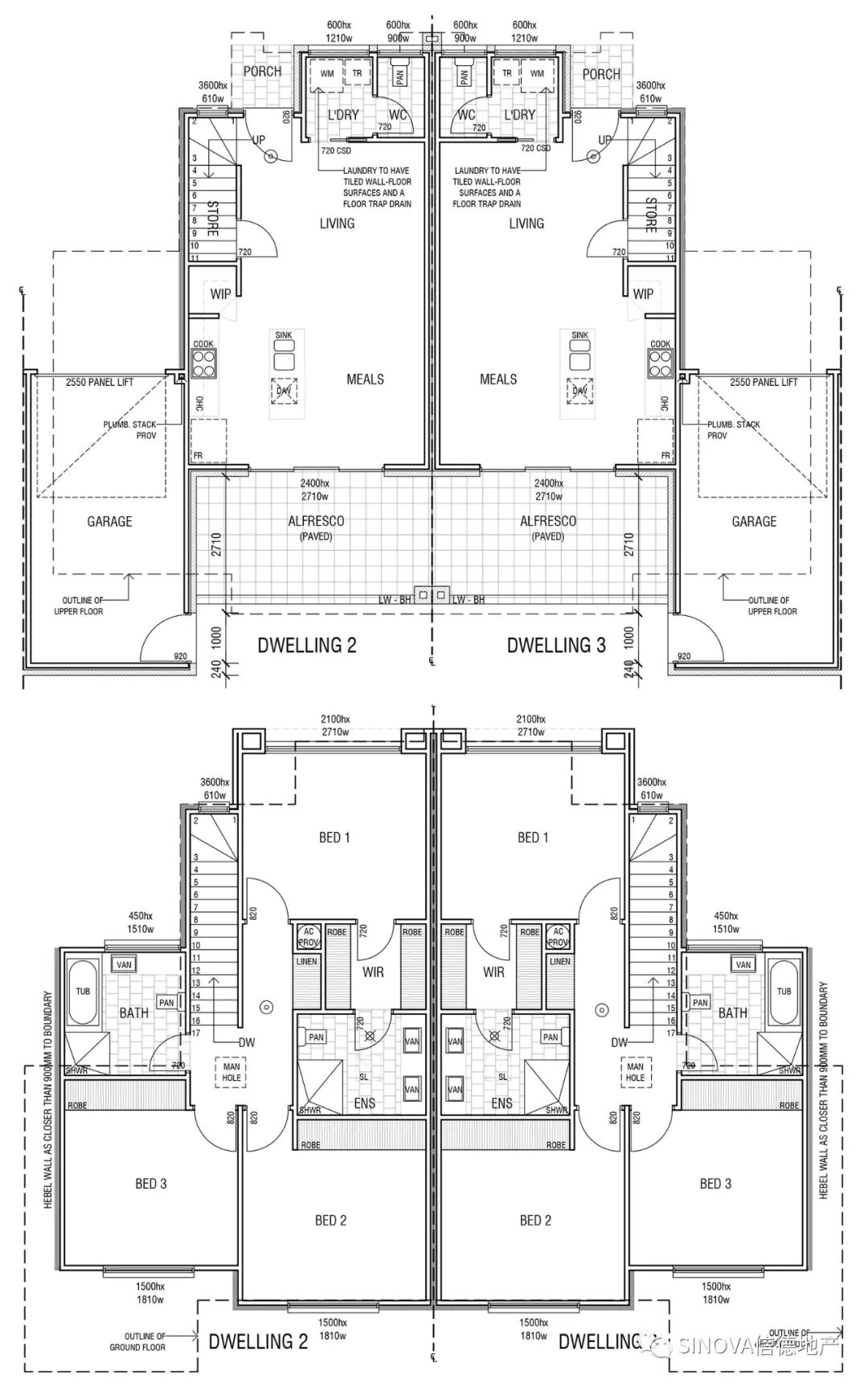
户型
Layout 流畅开阔
D2 & D3
其他亮点
非常精细的品质五金配件 车库采用遥控起落门 半包边淋浴间
城市繁华,海天景色都在分钟之间,社区购物便捷环境优雅,这处品质卓越的项目不要错过。
符合条件买家更可享有$25,000建房补贴以及首次购房补助。欢迎联系我们
SINOVA 信德地产 68 Halifax St Adelaide SA 5000 08 7080 5884 www.sinova.com.au RLA 293 907
|